Ruimtelijk plan: Nieuw initiatief passend maken in bestaande ruimte
Een ruimtelijk plan beschrijft hoe ruimte mag worden gebruikt en ingericht en vormt het planologisch kader voor bouwen en ontwikkelen.
Heb jij een nieuw initiatief of idee om te bouwen of te ontwikkelen? Dan is het belangrijk dat dit initiatief past binnen het ruimtelijk plan. Voor de inrichting van een gebied is vaak een stedenbouwkundig plan nodig en voor de uitstraling een beeldkwaliteitsplan. Maar wat houden deze plannen verder in? Waar moet je op letten? En wanneer stel je ze op?
Wat is een ruimtelijk plan?
Een ruimtelijk plan is een verzamelnaam voor plannen over hoe de ruimte gebruikt en ingericht mag worden, met regels over:
- Waar mag je bouwen
- Soort bebouwing
- Functie van de ruimte
Er bestaan meerdere ruimtelijke plannen, zoals een omgevingsvisie, structuurvisie, inpassingsplan en een stedenbouwkundig plan, maar het meest bekende en belangrijkste ruimtelijke plan is het omgevingsplan. Dit is een juridisch bindend kader van de gemeente onder de Omgevingswet. Hierin staan algemene regels van de gemeente voor de fysieke leefomgeving.
Past het plan binnen het omgevingsplan?
Dan kun je een binnenplanse omgevingsvergunning aanvragen, ook wel binnenplanse omgevingsplanactiviteit genoemd. Dit is een vergunning die nodig is voor een activiteit die binnen de regels van het omgevingsplan valt. Denk aan het plaatsen van een schuur in de tuin, een dakkapel of een uitbouw.
Past het ruimtelijke plan niet binnen het omgevingsplan? Overweeg dan een buitenplanse omgevingsplanactiviteit (BOPA) of een wijziging in het omgevingsplan. Een buitenplanse activiteit is in strijd met de huidige regels en vereist daarom een afwijkende vergunning. Een voorbeeld is het wijzigen van de functie van een woning naar kantoorruimte.
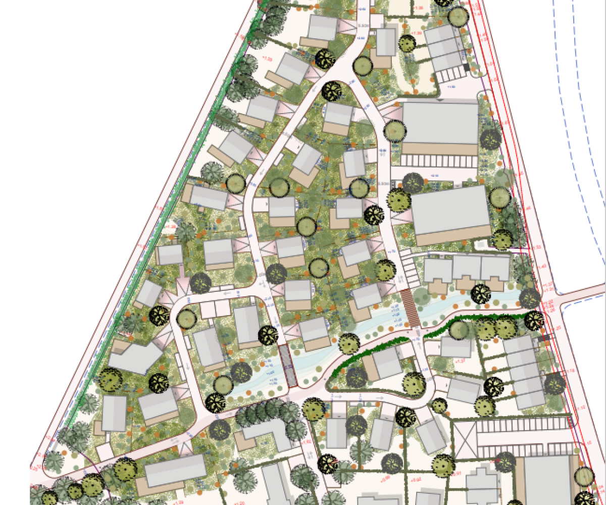
De inrichting van een gebied: stedenbouwkundig plan
Een stedenbouwkundig plan is een ruimtelijk ontwerp waarin staat hoe een gebied wordt ingericht, en hoe dit in verhouding is met de bestaande omgeving. Het plan vertaalt een initiatief naar concrete ruimtelijke keuzes over de ‘waar’ en ‘hoe’, zoals de ligging van wegen, woningen en groen.
Het plan legt de ruimtelijke structuur vast en beschrijft hoe functies samenkomen, hoe verkeersstromen verlopen en hoe bebouwing en groen elkaar versterken.
Een stedenbouwkundig plan ontstaat vanuit een analyse van de bestaande situatie en de ruimtelijke context. Op basis daarvan worden de wensen van initiatiefnemers en gebruikers gecombineerd met geldende regels en beleidskaders. Deze uitgangspunten worden uitgewerkt in schetsontwerpen en ruimtelijke principes. Het stedenbouwkundig plan vormt daarmee een inhoudelijk en toetsbaar kader voor verdere uitwerking, zoals beeldkwaliteit, inrichting van de openbare ruimte en vergunningverlening binnen de Omgevingswet.
Bij Prommenz kun je terrecht voor een stedenbouwkundig plan. De afdeling Ruimte & Ontwikkeling biedt begeleiding op maat voor ruimtelijke plannen.


De sfeer en uitstraling: Het beeldkwaliteitsplan
Een beeldkwaliteitsplan (BKP) is een visueel document dat vastlegt hoe een gebied er uit moet zien. Het BKP wordt vooral ingezet bij grotere projecten, zoals de ontwikkeling van een complete woonwijk. Het plan beschrijft uitsluitend de uitstraling en sfeer van een project. Denk aan richtlijnen voor:
- Materiaalgebruik
- Beplanting
- Kleur
- Massa
- Schaal
Zo kan het beeldkwaliteitsplan vastleggen welk type dakbedekking is toegestaan of welke gevelkleuren passen binnen het gewenste beeld. Het document kan als bijlage bij een stedenbouwkundig plan worden opgenomen en fungeert als toetsingkader voor bouwplannen. Het is overigens niet altijd verplicht.
De rol van landschappelijke inpassing
Een landschappelijke inpassing is het proces waarbij een nieuwe ontwikkeling passend wordt gemaakt in de bestaande omgeving. Dit kan gaan om grote plannen zoals een woonwijk of de bouw van een appartementencomplex, maar ook over kleinere plannen zoals de ontwikkeling van één woning of een klein aantal recreatiewoningen. De juiste landschappelijke inpassing zorgt ervoor dat de identiteit en het karakter van een gebied behouden blijft, het voorkomt visuele rommeligheid, draagt bij aan ecologische duurzaamheid en voldoet aan ruimtelijke beleidsdoelen.
De Provincie Noord-Holland heeft de Leidraad Landschap en Cultuurhistorie 2018 opgesteld. Dit is een provinciale handreiking voor het inpassen van nieuwe ruimtelijke ontwikkelingen. Hiermee werken stakeholders aan het behouden en versterken van de kwaliteit van het landschap en de cultuurhistorie.
Onderwerpen die in een landschappelijke inpassing te zien kunnen zijn:
- Inpassing van gebouwen
- Groenstructuren
- Waterstructuren
- Indeling van het erf of het perceel
- Infrastructuur (bereikbaarheid en routes)
- Materiaal- en kleurgebruik
- Overgang van de ontwikkeling naar het openbaar gebied
- Behoud (en eventueel) versterking van het landschap
- Duurzaamheid en klimaatadaptatie
Ruimtelijk plan laten opstellen of begeleiding nodig?
Wil je een ruimtelijk plan laten opstellen? Of heb je begeleiding nodig in het ruimtelijk proces? Dan ben je bij Prommenz aan het juiste adres. De afdeling Ruimte & Ontwikkeling van Prommenz weet alles over vergunningen, plannen en onderbouwingen, zodat jouw plan gewoon door kan gaan. Vragen of advies nodig? Neem gerust contact met ons op!
Veelgestelde vragen
Hoe vertaal je ideeën en ambities naar een concreet ruimtelijk plan dat werkt voor alle gebruikers?
Waarom is ruimtelijke kwaliteit belangrijk onder de Omgevingswet?
Wanneer heb je een stedenbouwkundig plan nodig?
Wat is een stedenbouwkundige onderbouwing?
Wat is het verschil tussen een ruimtelijk plan en een stedenbouwkundig plan?
Wanneer is een landschappelijke inpassing nodig?
Hoe helpt een goede ruimtelijke onderbouwing bij vergunningverlening?
Overig actueel
Ruimtelijk plan: Nieuw initiatief passend maken in bestaande ruimte
Een ruimtelijk plan beschrijft hoe ruimte mag worden gebruikt en ingericht en vormt het planologisch kader voor bouwen en ontwikkelen.
Heb jij een nieuw initiatief of idee om te bouwen of te ontwikkelen? Dan is het belangrijk dat dit initiatief past binnen het ruimtelijk plan. Voor de inrichting van een gebied is vaak een stedenbouwkundig plan nodig en voor de uitstraling een beeldkwaliteitsplan. Maar wat houden deze plannen verder in? Waar moet je op letten? En wanneer stel je ze op?
Prommenz On Tour | De kracht van Prommenz
In deze speciale jubileumaflevering kijken Foppe en Martijn samen met Willem terug op het ontstaan, de groei en ontwikkeling van Prommenz. Van kleine club tot een professioneel bureau, zonder de eigenheid te verliezen waar het bedrijf voor staat. Een gesprek vol persoonlijke verhalen, herinneringen, en memorabele momenten!